 
		
		 
		
		
		
		
		
	
			
	
 
      
			
		Informacije o nekretnini
Kategorija
Tip:
Na prodaju
Cijena:
€ 445 000
€ 475 000
Lokacija:
Svetvinčenat, Istra
Površina:
170 m2
Okućnica:
750 m2
Spavaćih soba:
3
Kupaonica:
3
Soba:
4
Oddaljenost od morja:
15 km
Oddaljenost od plaže:
15 km
Oddaljenost od centra:
5 km
Leto izdelave:
1920
Leto prenove:
2024
Upit
Sva polja su obavezna *
				Vaše ime * 
E-mail adresa * 
Mobilni broj * 
Poruka * 
Anti-spam šifra * 
Molim prepišite peteroznamenkasti kod od iznad
Opis
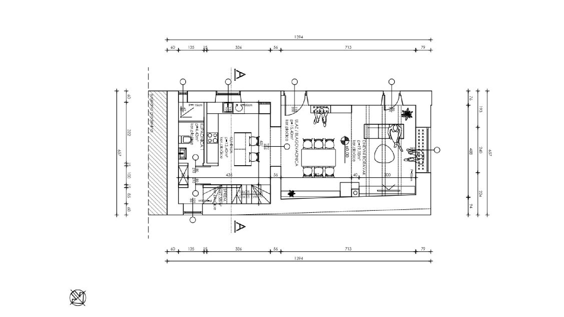
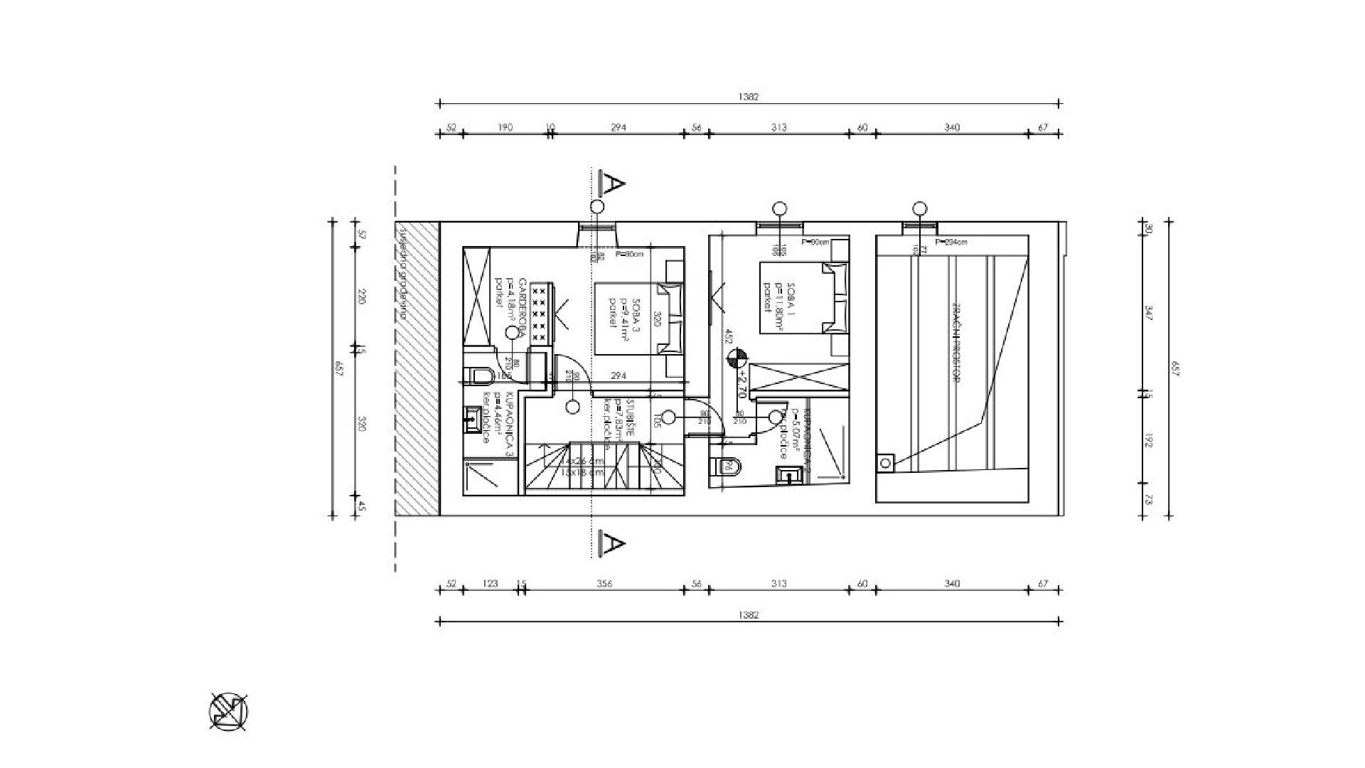
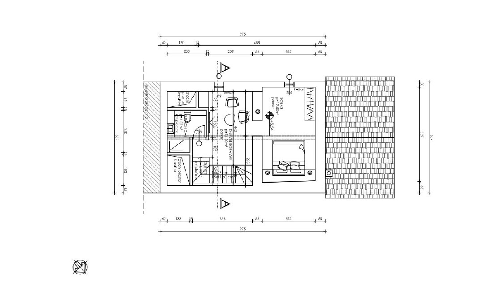
Prodaje se predivno renovirana kamena kuća površine 170 m2 s bazenom. Kuća se prodaje kompletno renovirana i namještena u kombinaciji tradicionalne istarske kamene kuće u spoju sa modernom funkcionalnošću. Prizemlje kuće sastoji se od dnevnog boravka s kaminom, blagovaone, potpuno opremljene kuhinje, toaleta i ostave. Na katu se nalaze dvije spavaće sobe s vlastitim kupaonama dok se u mansardi nalazi master spavaća soba, predsoblje i kupatilo.
Grijanje kuće je omogućeno s podnim grijanjem, kaminom u dnevnom boravku te 4 klima uređaja, u svakoj spavaćoj sobi te u dnevnom boravku 
Na uređenom i ograđenom dvorištu površine 750 m2 nalaze se dva parkirna mjesta, bazen površine 32 m2 (9 x 3.5) m i terasa s nadstrešnicom.
Detalji
Klima uređaj
Bazen
Atraktivno
Podno grijanje
Terasa
Vrt
Renovirano
Djelomično namješteno
Zalijevanje travnjaka
Suhozid
Dva parkirna mjesta
Okolica
Kuća u nizu
			




.jpg)
.jpg)
.jpg)

.jpg)



.jpg)
.jpg)
.jpg)
.jpg)
.jpg)
.jpg)
.jpg)
.jpg)
.jpg)
.jpg)

.jpg)
.jpg)
.jpg)
.jpg)
.jpg)
.jpg)
.jpg)
.jpg)
.jpg)
.jpg)
.jpg)
.jpg)
.jpg)

.jpg)
.jpg)




 
             
            .jpg) 
            .jpg) 
             
            