Informacije o nekretnini
Kategorija
Tip:
Na prodaju
Cijena:
€ 415 000
Lokacija:
Veli Vrh, Pula, Istra
Površina:
112.87 m2
Spavaćih soba:
3
Kupaonica:
2
Kat:
2
Soba:
4
Udaljenost od mora:
1.5 km
Udaljenost od plaže:
3 km
Godina izgradnje:
2026
Katnost:
2
Upit
Sva polja su obavezna *
Vaše ime *
E-mail adresa *
Mobilni broj *
Poruka *
Kliknite na kućicu *
Opis
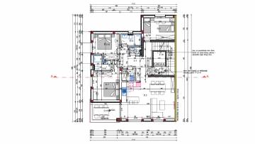
Prodaje se stan oznake D u Puli na Velom vrhu na 2.katu. Ukupna površina stana iznosi 112.87 m2, a sam stan je neto površine 98.52 m2. Stanu pripadaju dva nakkrivena parkina mjesta i spremište. Stan se sastoji se od ulaznog hodnika, tri spavaće sobe, dnevnog boravka s kuhinjom i blagovaonicom, dvije kupaonice, toaleta, vešeraja i terase. Stan se prodaje po principu ključ u ruke! Oprema stana uključuje klima uređaj, podno grijanje, PVC vanjsku stolariju, podne obloge soba laminat, podne obloge kupaonice keramičke pločice, lift... Lokacija; u blizini škola, vrtić, trgovina,..zgrada je udaljena 3 km od pulske Arene i 3 km od plaže. Planirani završetak gradnje 12/2026.
Detalji
Klima uređaj
Atraktivno
Terasa
Luksuzno
Spremište
Lift
U izgradnji
Novogradnja
Kupac ne plaća porez na promet nekretnina
Dva parkirna mjesta


