Informacije o nekretnini
Kategorija
Tip:
Na prodaju
Cijena:
€ 206 500
Lokacija:
Valbandon, Fažana, Istra
Površina:
68.83 m2
Spavaćih soba:
2
Kupaonica:
1
Kat:
1
Soba:
3
Udaljenost od mora:
1.5 km
Udaljenost od plaže:
2 km
Godina izgradnje:
2025
Katnost:
2
Datum završetka:
2026 /Q4
Upit
Sva polja su obavezna *
Vaše ime *
E-mail adresa *
Mobilni broj *
Poruka *
Kliknite na kućicu *
Opis
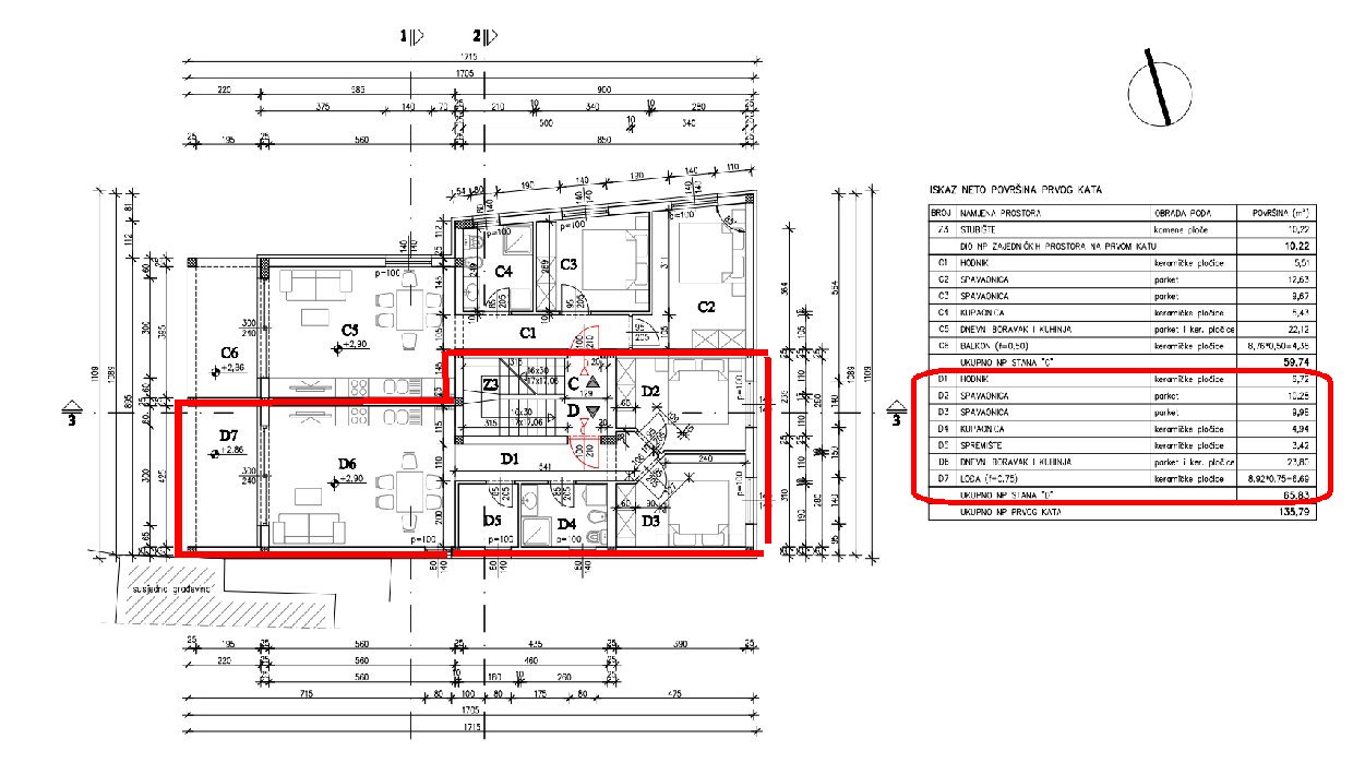
Fažana – Valbandon, dvosoban stan (D) u izgradnji, ukupne površine 68.83 m², smješten na prvom katu stambene zgrade sa šest stambenih jedinica.
Stan se nalazi u blizini Fažane, svega 1,5 km od mora.
Stambeni dio površine 65.83 m² sastoji se od ulaznog prostora, dvije spavaće sobe, dnevnog boravka s kuhinjom i blagovaonicom, kupaonice, terase i ostave. Stanu pripada jedno parkirno mjesto.
Oprema stana uključuje PVC stolariju u elegantnoj antracit boji s troslojnim staklom, električne rolete, visokokvalitetnu keramiku, opremljeno kupatilo te klima uređaj.
Planirani završetak radova: kraj 2026. godine.
Način plaćanja:
- 10 % kapara
- 40 % u roh-bau fazi
- 20 % obrtnički radovi I
- 20 % obrtnički radovi II
- 10 % po ishođenju uporabne dozvole
Detalji
Klima uređaj
Terasa
U izgradnji
Novogradnja
Parkirno mjesto





